优雅的现代客厅转换
总体预算
25000美元灵感
细节
项目标题
优雅的现代客厅转换
项目描述
我丈夫和我都在购买的过程中一个新的家和想一些设计之前帮助我们改造它。我们需要建议地板、油漆颜色,装饰,照明灯具和装饰。
设计应该是现代的,干净,温暖,舒适,孩子友好的和简单的天赋。应该有一个或两个元素的意外。我和我的丈夫在创意产业工作所以我们家应该反映我们的爱美,简单起见,艺术和音乐。
我们想要的颜色白色和灰色的主要颜色。口音的颜色,我们打开你的想法…可能小的草绿色和海洋蓝色就好了,以反映自然。我们爱布朗(尤其是深棕色和介质布朗)和1 - 2老项目,我们想让它是黑色的。
装饰的风格——我们喜欢现代/现代触动的“传统”和“迷人”。我爱水银玻璃和镜子家具这必须包括。我们喜欢黄金和银完成……有办法把它们在一个家里,这样看起来不会奇怪吗?
关于地板,我们爱木(棕色或灰色的彩色)和瓷(我们爱灰色/白色!)。我的丈夫喜欢石灰华,但我不喜欢它的白色/米色的颜色。我太累了白色或米色的颜色,我不知道怎么去做!:0)然而,我见过石灰华看灰色周围都是灰色的时候我打开它(但我不喜欢它)。
关于预算,我们想保持低成本的装饰…每个房间1000 - 5000美元。改造我们的预算是20000美元——40000美元,但这包括一些维修需要回家。
位置
糖的土地,TX,美国
你最喜欢什么装修风格吗?
现代
有哪些你喜欢的室内设计品牌或商店购物吗?
宜家,Z Gallerie,恢复硬件、西榆树、Crate & Barell(任何负担得起的地方)
哪个颜色你不喜欢吗?
勃艮第,米色,红色,棕褐色,黄色的
你最喜欢的颜色是什么墙吗?
灰色,白色的
你最喜欢的颜色是什么家具和口音吗?
灰色,深棕色(巧克力)白色的,马鞍棕色维
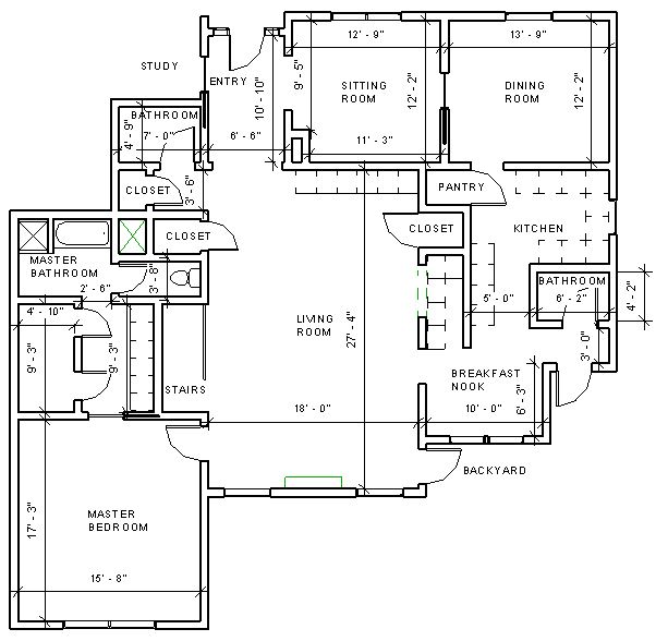
18“0”W x 26 ' 6“L x 19“0”H你的房间的照片
细节
房间里的标签
我的客厅
我希望这个房间感觉更男性化/女性化/中性
中性
这个房间接受什么类型的阳光?
正午的阳光
你现在不喜欢在房间里吗?
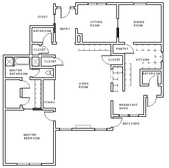
我们不喜欢这个房间里的任何东西的家具和装饰属于卖方。我们不喜欢地板和楼梯的栏杆和楼梯的台阶……我们不希望地毯的步骤。请注意,我们将推倒柏林墙在客厅(架子上),打开餐厅区域创建一个开放的平面图。酒吧区,你看到背后的墙也会删除打开厨房到客厅。我们可以把一个小岛,但建议你是开放的。
现有的家具,照明,艺术或配件你想保持在设计?
一个也没有。
你愿意改变墙的颜色吗?
是的
你有偏爱油漆或墙面涂料,或你都开放吗?
打开两个
你愿意改变你的地板吗?
是的
你喜欢哪种类型的地板?
木、砖、石、面积地毯
额外的评论设计师
——像现代、大理石壁炉——如新地板
玻璃栏杆上楼梯(我们其他现代思想开放!)
抹杀的,大胆的,兼收并蓄,现代,舒适,与天赋惊人的,简单的风格
喜欢肉质植物,使户外活动
模式:不花,喜欢:几何、圆圈
——喜欢把每个房间的媒介预算,试图design-on-a-dime,但看上去也很不错
——我爱摄影,爱一个地方我可以显示家庭肖像。
——需要将某个电视;我们将把它。
维
17”3“L x 15 8“L x 10 0”H你的房间的照片
细节
房间里的标签
我的主卧室
我希望这个房间感觉更男性化/女性化/中性
中性
你现在不喜欢在房间里吗?
窗外。我们需要一个新的窗口在这个房间里。
现有的家具,照明,艺术或配件你想保持在设计?
一个也没有。
你愿意改变墙的颜色吗?
是的
你有偏爱油漆或墙面涂料,或你都开放吗?
打开两个
你愿意改变你的地板吗?
是的
你喜欢哪种类型的地板?
木头,地毯,面积地毯
额外的评论设计师
抹杀的,大胆的,兼收并蓄,现代,舒适,惊人的,简单的风格的风格,浪漫,放松。喜欢肉质植物,使户外活动
模式:不花,喜欢:几何、圆圈
——喜欢把每个房间的媒介预算,试图design-on-a-dime,但看上去也很不错
——如新地毯,大窗户,所有新家具
——需要特大号床
——想要包括一个电视在房间里
维
6 ' 6“W x 11 6“L x 10 0”H你的房间的照片
细节
房间里的标签
我的条目
我希望这个房间感觉更男性化/女性化/中性
中性
这个房间接受什么类型的阳光?
晨光
你现在不喜欢在房间里吗?
完成
现有的家具,照明,艺术或配件你想保持在设计?
没有一个
你愿意改变墙的颜色吗?
是的
你有偏爱油漆或墙面涂料,或你都开放吗?
打开两个
你愿意改变你的地板吗?
是的
你喜欢哪种类型的地板?
木材、瓷砖、石材
额外的评论设计师
抹杀的,大胆的,兼收并蓄,现代,舒适,与天赋惊人的,简单的风格喜欢肉质植物,使户外活动
模式:不花,喜欢:几何、圆圈
——喜欢把每个房间的媒介预算,试图design-on-a-dime,但看上去也很不错
——喜欢油漆或把新壁纸,白色大理石地板,也许金属天花板?
这里需要大胆,哇因素!
——也许把我们的房子钥匙的地方……表?
维
12”2“L x 13 9“W x 10 0”H你的房间的照片
你想保持
细节
房间里的标签
我丈夫的人空间
我希望这个房间感觉更男性化/女性化/中性
男性化的
这个房间接受什么类型的阳光?
晨光
你现在不喜欢在房间里吗?
物品的图片不是我们的…他们都归卖方所有。
现有的家具,照明,艺术或配件你想保持在设计?
我们有两个黑色的皮椅上,我的丈夫爱(见图). .
你愿意改变墙的颜色吗?
是的
你有偏爱油漆或墙面涂料,或你都开放吗?
打开两个
你愿意改变你的地板吗?
是的
你喜欢哪种类型的地板?
木、砖、石、面积地毯
额外的评论设计师
门最右侧的图片,对面的窗口,将关闭。这是厨房的门。获得这种“人的店”将通过餐厅。我丈夫是6尺8寸高和他的朋友们也是高所以我们需要舒适的家具和一些空间移动。他想和朋友一起看电视,吃在这个房间里放松和阅读。
这个区域可以看到从入口,餐厅应该融入其他的房子,但是看起来有点男性化……但不是太多。
有口袋门单独从餐厅这个房间。
抹杀的,大胆的,兼收并蓄,现代,舒适,与天赋惊人的,简单的风格
喜欢肉质植物,使户外活动
模式:不花,喜欢:几何
——喜欢把每个房间的媒介预算,试图design-on-a-dime,但看上去也很不错
——像一个电视,木地板(?)
维
7 ' 0”L x 4 9“W x 10 0”H你的房间的照片
细节
房间里的标签
我的盥洗室
我希望这个房间感觉更男性化/女性化/中性
中性
这个房间接受什么类型的阳光?
很少的阳光
你现在不喜欢在房间里吗?
一切。
现有的家具,照明,艺术或配件你想保持在设计?
一个也没有。
你愿意改变墙的颜色吗?
是的
你有偏爱油漆或墙面涂料,或你都开放吗?
打开两个
你愿意改变你的地板吗?
是的
你喜欢哪种类型的地板?
木材、瓷砖、石材
额外的评论设计师
这一半浴是供客人使用,它坐落的起居室,在入口附近。让我们做一些意想不到的在这里……大胆的和有趣的但在几年内不会过时的东西。抹杀的,大胆的,兼收并蓄,现代,舒适,与天赋惊人的,简单的风格
喜欢肉质植物,使户外活动
模式:不花,喜欢:几何、圆圈
——喜欢把每个房间的媒介预算,试图design-on-a-dime,但看上去也很不错
不管是壁纸/油漆,新砖,黑色花岗岩柜台(?),水槽,橱柜
你的房间的照片
你想保持
细节
房间里的标签
我的厨房/早餐角落
我希望这个房间感觉更男性化/女性化/中性
中性
这个房间接受什么类型的阳光?
晨光
你现在不喜欢在房间里吗?
一切。
现有的家具,照明,艺术或配件你想保持在设计?
一个也没有。
你愿意改变墙的颜色吗?
是的
你有偏爱油漆或墙面涂料,或你都开放吗?
打开两个
你愿意改变你的地板吗?
是的
你喜欢哪种类型的地板?
木、砖、石、面积地毯
额外的评论设计师
抹杀的,大胆的,兼收并蓄,现代,舒适,与天赋惊人的,简单的风格喜欢肉质植物,使户外活动
模式:不花,喜欢:几何、圆圈
——喜欢把每个房间的媒介预算,试图design-on-a-dime,但看上去也很不错
最敲下来的橱柜,衣柜,小浴室,厨房和客厅之间和墙壁打开厨房到客厅,关闭厨房和餐厅之间的门有更多的空间在厨房电器,离开早餐角落和起居室之间的墙(想法上面照片所示)
——像银罩,新地板,大岛,定制白色的橱柜,所有白色的厨房,改变窗口刷新窗口,农场,白色连壁(?),新的照明。
——必须有很多厨具的存储。可能一个书架食谱吗?
-颜色…白色,银色,灰色,棕色。
维
12”2“L x 12 9“W x 10 0”H你的房间的照片
你想保持
细节
房间里的标签
我的餐厅
我希望这个房间感觉更男性化/女性化/中性
中性
这个房间接受什么类型的阳光?
正午的阳光
你现在不喜欢在房间里吗?
一切。
现有的家具,照明,艺术或配件你想保持在设计?
我们自己的黑框镜,目前位于我们的餐厅,但它没有呆在那里。你可以把它的任何地方的房子。我们也有不错的餐厅与白色椅子已经恢复,彩虹色的材料,你可以用湿布擦拭干净。他们有黑色的腿。
我们还拥有一个玻璃餐桌一个半透明的基地。我不喜欢这张桌子,因为我不喜欢半透明的家具和桌子上有一个小裂缝。我的丈夫喜欢它。也许我们可以得到一个新的基地吗?或者一个新表取决于价格。
此外,这些黑色的物品是我丈夫的(他买年前单身公寓)所以我不想让你认为我们爱黑色…我们不但是这些物品应该合并。黑色是一个很好的颜色和应该谨慎使用,除非它是一个大胆的方式。
你愿意改变墙的颜色吗?
是的
你有偏爱油漆或墙面涂料,或你都开放吗?
打开两个
你愿意改变你的地板吗?
是的
你喜欢哪种类型的地板?
木、砖、石、面积地毯
额外的评论设计师
客厅餐厅曾经用作但我们会推倒墙上最右侧,打开客厅。这堵墙的另一边是搁置单元你看到在客厅里。餐厅位于左边的入口区域。我们需要坐6人以上。我们也爱长椅。它应该是一个家庭友好型区域正式但不闷。应该是美丽的。我们将建议一个新的吊扇。我爱水银玻璃。
抹杀的,大胆的,兼收并蓄,现代,舒适,与天赋惊人的,简单的风格
喜欢肉质植物,使户外活动
模式:不花,喜欢:几何、圆圈
——喜欢把每个房间的媒介预算,试图design-on-a-dime,但看上去也很不错
你的房间的照片
细节
房间里的标签
我的家/小办公室
你愿意改变墙的颜色吗?
是的
你有偏爱油漆或墙面涂料,或你都开放吗?
油漆
你愿意改变你的地板吗?
是的
你喜欢哪种类型的地板?
木
1Lundberg手织灰色区域由nuLOOM地毯
2奥斯汀皮旋转扶手椅
3奥斯汀皮奥斯曼
4银毛沙发,航行
5反射的咖啡桌
6子午线表
7世纪台灯
8Jeni DwellStudio茶几
9杰登亚麻Safavieh抱枕
10身体由Belia Simm限量版印刷
11曾就读拉丝镍落地灯
12纯黄金交叉
2奥斯汀皮旋转扶手椅
3奥斯汀皮奥斯曼
4银毛沙发,航行
5反射的咖啡桌
6子午线表
7世纪台灯
8Jeni DwellStudio茶几
9杰登亚麻Safavieh抱枕
10身体由Belia Simm限量版印刷
11曾就读拉丝镍落地灯
12纯黄金交叉
1BRAYDON丝带茶几
2西尔维斯特X基地凳子金斯敦回家
3兰利街Grenfall亚麻抱枕
4贝弗利开车6光鼓吊灯大道照明
5大道黄铜落地灯
6哑光镍1.25”迪亚。x120“-170”窗帘杆
7午睡灰色金毯子
8华莱士白色52“x96”的窗帘面板
9吕富MATELASSE有机被套
10吕富MATELASSE有机羽绒被骗局
11天丝棉®表设置
12韦德Logan Greenbank 6抽屉柜子
13卢卡桶麦迪逊公园椅子上
14安吉拉28.5”H与鼓台灯阴影云雀庄园
15马龙竞选床头柜——白漆
16斜纹软垫床面板的天际线家具
2西尔维斯特X基地凳子金斯敦回家
3兰利街Grenfall亚麻抱枕
4贝弗利开车6光鼓吊灯大道照明
5大道黄铜落地灯
6哑光镍1.25”迪亚。x120“-170”窗帘杆
7午睡灰色金毯子
8华莱士白色52“x96”的窗帘面板
9吕富MATELASSE有机被套
10吕富MATELASSE有机羽绒被骗局
11天丝棉®表设置
12韦德Logan Greenbank 6抽屉柜子
13卢卡桶麦迪逊公园椅子上
14安吉拉28.5”H与鼓台灯阴影云雀庄园
15马龙竞选床头柜——白漆
16斜纹软垫床面板的天际线家具
1卢西亚诺6金照明光的水晶吊灯
2Lensua桌案,阿尔戈家具
3列凳子Moe的集合
4矩形铜冰铜美化市容托盘的房子前面
5猎户座的镜子
6铂列灯
7方向的花瓶
8画廊帧——抛光镍
9画廊帧——抛光镍
10画廊帧——抛光镍
11画廊帧——抛光镍
12画廊帧——抛光镍
2Lensua桌案,阿尔戈家具
3列凳子Moe的集合
4矩形铜冰铜美化市容托盘的房子前面
5猎户座的镜子
6铂列灯
7方向的花瓶
8画廊帧——抛光镍
9画廊帧——抛光镍
10画廊帧——抛光镍
11画廊帧——抛光镍
12画廊帧——抛光镍
1卢克莱修的酒吧服务购物车汉普顿的房子
2站在Eurostyle米兰达电视
3帝国台灯
4指数沙发
5布坎南停电单一窗帘面板Varick画廊
6哑光镍1.25”迪亚。x88“-120”窗帘杆
7Baxton工作室爱尔兰人奥斯曼批发内饰
8梳子茶几,韦德洛根
9瑞现代茶几,韦德洛根
10由Safavieh Guildsman金属桌子凳子
11Kichler 54“Cadencec 3叶片吊扇
12牛津大学图书馆古董书33 ' x 20.5”风景壁纸的布儒斯特家时尚
13瓦伦西亚66”由Ren-Wil拱形落地灯
14固体的角度Basketweave羊毛地毯-铂8 'x10”
2站在Eurostyle米兰达电视
3帝国台灯
4指数沙发
5布坎南停电单一窗帘面板Varick画廊
6哑光镍1.25”迪亚。x88“-120”窗帘杆
7Baxton工作室爱尔兰人奥斯曼批发内饰
8梳子茶几,韦德洛根
9瑞现代茶几,韦德洛根
10由Safavieh Guildsman金属桌子凳子
11Kichler 54“Cadencec 3叶片吊扇
12牛津大学图书馆古董书33 ' x 20.5”风景壁纸的布儒斯特家时尚
13瓦伦西亚66”由Ren-Wil拱形落地灯
14固体的角度Basketweave羊毛地毯-铂8 'x10”
1帝国II 36“单一浴室盥洗台的好设备
2蒙德里安5 Dainolite光墙的烛台
3∞36“圆墙镜
2蒙德里安5 Dainolite光墙的烛台
3∞36“圆墙镜
1Kichler艾维- 1光迷你吊坠
2Gipe Brayden餐桌的工作室
3凤凰象牙24“反凳子
4Jared簇板凳长椅,珍妮弗·泰勒
5涅瑞伊得斯4光仓库的蒂芙尼的水晶吊灯
6nuLOOM Ryck浅灰色小地毯
7轴餐椅
8植物细胞1玛丽加斯帕
9亚麻的52“x96”白色窗帘面板
10dia Rorke镍1.25”。x88“-120”窗帘杆
11Peraza Hand-Tufted白色区域地毯的汞行
2Gipe Brayden餐桌的工作室
3凤凰象牙24“反凳子
4Jared簇板凳长椅,珍妮弗·泰勒
5涅瑞伊得斯4光仓库的蒂芙尼的水晶吊灯
6nuLOOM Ryck浅灰色小地毯
7轴餐椅
8植物细胞1玛丽加斯帕
9亚麻的52“x96”白色窗帘面板
10dia Rorke镍1.25”。x88“-120”窗帘杆
11Peraza Hand-Tufted白色区域地毯的汞行
1Modrest Xavier餐桌中收取的家具
2镜子媒体书柜
3孟菲斯简模糊休斯
4现代的房间家具ELAN 12椭圆形吊灯ELNL1055光
5棱镜支柱持有人- 9.5“H
6棱镜支柱持有人- 11.5“H
7圈内人面板
8dia Rorke镍1.25”。x88“-120”窗帘杆
9威尼西亚地毯
10萨凡纳花瓶——小
11萨凡纳花瓶——大
2镜子媒体书柜
3孟菲斯简模糊休斯
4现代的房间家具ELAN 12椭圆形吊灯ELNL1055光
5棱镜支柱持有人- 9.5“H
6棱镜支柱持有人- 11.5“H
7圈内人面板
8dia Rorke镍1.25”。x88“-120”窗帘杆
9威尼西亚地毯
10萨凡纳花瓶——小
11萨凡纳花瓶——大
162年“拱形落地灯的卡尔照明
2tesso chrome的桌子
3当你凯伦·科尔
4Jaime德林格untitled 1
5克鲁兹Mid-Back皮革会议椅由克里甘工作室
6的住房过滤光窗帘面板合并纺织品
7普雷斯科特23“H台灯由Adesso帝国阴影
8韦德洛根蜡烛木地球灰色区域地毯
9钱伯斯躺椅,花岗岩
10dia Rorke镍1.25”。x88“-120”窗帘杆
2tesso chrome的桌子
3当你凯伦·科尔
4Jaime德林格untitled 1
5克鲁兹Mid-Back皮革会议椅由克里甘工作室
6的住房过滤光窗帘面板合并纺织品
7普雷斯科特23“H台灯由Adesso帝国阴影
8韦德洛根蜡烛木地球灰色区域地毯
9钱伯斯躺椅,花岗岩
10dia Rorke镍1.25”。x88“-120”窗帘杆
结合客厅/餐厅:
因为你的房间得到充足的阳光颜色选项是很广泛的。
为主要颜色,我们选择使用白色/白色,因为它提供了一个清新、干净,感觉空间。白色和白色的颜色通常是一个最喜欢的墙是因为它们的身体轻,中性,搭配最配色方案。他们会让房间感觉更多的通风和宽敞。
使用一个蛋壳面漆有很轻的光芒(类似纹理蛋壳就暗示了它的名字)。这完成是经常用于墙壁和比喷砂面更耐用,易于清洁
为主要颜色,我们选择使用白色/白色,因为它提供了一个清新、干净,感觉空间。白色和白色的颜色通常是一个最喜欢的墙是因为它们的身体轻,中性,搭配最配色方案。他们会让房间感觉更多的通风和宽敞。
使用一个蛋壳面漆有很轻的光芒(类似纹理蛋壳就暗示了它的名字)。这完成是经常用于墙壁和比喷砂面更耐用,易于清洁
结合客厅/餐厅颜色:
| 颜色 | 的名字 | 公司/代码 | 链接 | 区域 |
|---|---|---|---|---|
| 装饰的白色 | 本杰明摩尔/ CC-20 | https://www.benjaminmoore.com/en-us/color-overview/find-your-color/color/CC-20/decorators-white?color=CC-20 | 墙 |
购物清单:
| Decorilla折扣 | 照片 | 的名字 | 描述 | 链接 | 维 | Decorilla折扣 |
|---|---|---|---|---|---|---|
|
25% |
![]() |
叙利娅集合 Lundberg手织灰色区域由nuLOOM地毯 |
Lundberg收集材料:100%羊毛建设:手工编织 | 订单&保存 | 8“6“×11”6” |
25% |
|
5% |
![]() |
最远的集合 奥斯汀皮旋转扶手椅 |
宽敞的座位,缓冲和在上雕琢平面的武器,我们奥斯汀旋转扶椅就是舒适满足的风格。颜色:木炭 | 订单&保存 | 29.1 d x 36.2“w x 36.2 h。 |
5% |
|
5% |
![]() |
最远的集合 奥斯汀皮奥斯曼 |
覆盖在我们的溢价自然皮革,我们奥斯汀奥斯曼是舒适满足的风格。颜色:木炭 | 订单&保存 | 23.5 d x 17.3“w x 18 h。 |
5% |
|
12% |
![]() |
西方榆树 银毛沙发,航行 数量:2 |
烘干的硬木框架从可持续森林认证的供应商 | 订单&保存 | 87 d 30.5“33.5 w h |
12% |
|
12% |
![]() |
西方榆树 反射的咖啡桌 |
创建一个诱人的核心,这个咖啡桌是包裹在漂亮的古董岁灰色镜片。 | 订单&保存 | 36 d 17“w 31 h |
12% |
|
20% |
![]() |
布朗先生伦敦集合 子午线表 |
我们的桌子有一个独特的马赛克和时尚的建筑设计,标志着视觉明度和优雅。 | 订单&保存 | 17.25“diam. x 25“h |
20% |
|
20% |
![]() |
布朗先生伦敦集合 世纪台灯 |
白色鼓帘优雅穹顶独有的银镜玻璃和铬刷基础,定义我们的银色色调的世纪魅力十足的精致和时尚的现代的台灯。 | 订单&保存 | 18“直径x 40“H |
20% |
|
12% |
![]() |
陶器谷仓 Jeni DwellStudio茶几 |
完成:银色光泽 | 订单&保存 | 24 W×24“H×24 D |
12% |
|
25% |
![]() |
叙利娅集合 杰登亚麻Safavieh抱枕 数量:2 |
以silver-hued覆盖希腊关键设计,这个惊人的枕头注入你的沙发或床上的魅力。颜色:银色 | 订单&保存 | 22“平方 |
25% |
|
10% |
![]() |
Zatista 身体由Belia Simm限量版印刷 |
颜色:深木炭,框架:浅灰色木框架 | 订单&保存 | 54“x 40” |
10% |
|
16% |
![]() |
箱和桶 曾就读拉丝镍落地灯 |
建筑工业钢线上升到现代盒光Aerin落地灯。 | 订单&保存 | 10 * 10 * 60” |
16% |
|
16% |
![]() |
CB2 纯黄金交叉 |
这种纯黄金墙壁十字素雅声明你的信仰。在顶部提手。 | 订单&保存 | 8.3 x 4.3 x 0.9英寸 |
16% |
卧室:
因为你的房间得到充足的阳光颜色选项是很广泛的。
为你的主色调,我们选择使用灰色,因为它是中性的,视为优雅和优雅。它赞美很多颜色如白色,蓝色,黄色和适用的配色方案在任何房间。
使用一个蛋壳面漆有很轻的光芒(类似纹理蛋壳就暗示了它的名字)。这完成是经常用于墙壁和比喷砂面更耐用,易于清洁
为你的主色调,我们选择使用灰色,因为它是中性的,视为优雅和优雅。它赞美很多颜色如白色,蓝色,黄色和适用的配色方案在任何房间。
使用一个蛋壳面漆有很轻的光芒(类似纹理蛋壳就暗示了它的名字)。这完成是经常用于墙壁和比喷砂面更耐用,易于清洁
卧室颜色:
| 颜色 | 的名字 | 公司/代码 | 链接 | 区域 |
|---|---|---|---|---|
| 角度® | 本杰明摩尔/ CSP-5 | https://www.benjaminmoore.com/en-us/color-overview/find-your-color/color/csp-5/perspective?color=CSP-5 | 墙 |
购物清单:
| Decorilla折扣 | 照片 | 的名字 | 描述 | 链接 | 维 | Decorilla折扣 |
|---|---|---|---|---|---|---|
|
5% |
![]() |
Modway家具收藏 BRAYDON丝带茶几 |
的最终表达式弯木制的技术,Braydon丝带茶几对待21世纪家具的技术先驱迈克尔Thonet形式。 | 订单&保存 | 17.7 " x 23.6 " x 16.5 " |
5% |
|
12% |
![]() |
西方榆树 西尔维斯特X基地凳子金斯敦回家 数量:2 |
材料:Chrome /亚麻/再生皮完成:香槟金 | 订单&保存 | 18“H x 22 W x 16 D |
12% |
|
25% |
![]() |
叙利娅集合 兰利街Grenfall亚麻抱枕 数量:2 |
颜色:象牙 | 订单&保存 | 18“x18” |
25% |
|
2% |
![]() |
AllModern 贝弗利开车6光鼓吊灯大道照明 |
颜色:银色 | 订单&保存 | 夹具的高度——从上到下:17“固定宽度-一边到另一边:39.5” |
2% |
|
16% |
![]() |
箱和桶 大道黄铜落地灯 |
现代和金属的混合照明,我们高的落地灯上升高一个清晰的、圆柱形玻璃基地,覆盖着温暖的黄铜口音。完成:黄铜 | 订单&保存 | 18“dia。x 62“H |
16% |
|
16% |
![]() |
箱和桶 哑光镍1.25”迪亚。x120“-170”窗帘杆 |
当代哑光镍提供了光滑、简单的支持。 | 订单&保存 | 1.25“dia.x120”-170 |
16% |
|
16% |
![]() |
箱和桶 午睡灰色金毯子 |
厚棉纱编织,这些舒适的毛毯把灵感来自古董葡萄牙纺织编织在手摇纺织。 | 订单&保存 | 109 W x90 D |
16% |
|
16% |
![]() |
箱和桶 华莱士白色52“x96”的窗帘面板 数量:4 |
协调当代和传统的内部,我们的白色棉质华莱士与优雅的褶皱窗帘面板框架窗口。 | 订单&保存 | 52“Wx96”H |
16% |
|
12% |
![]() |
陶器谷仓 吕富MATELASSE有机被套 |
添加一层精致的纹理层理。钻石模式是点缀着花朵柔软,优雅的外观。 | 订单&保存 | 108年“长x 92”宽 |
12% |
|
12% |
![]() |
陶器谷仓 吕富MATELASSE有机羽绒被骗局 数量:2 |
添加一层精致的纹理层理。钻石模式是点缀着花朵柔软,优雅的外观。 | 订单&保存 | 欧元:26”广场 |
12% |
|
12% |
![]() |
陶器谷仓 天丝棉®表设置 |
豪华软缎纹组织使薄膜的智能选择舒适和时尚的床上。大小:国王,颜色:白色 | 订单&保存 | 床套:78“宽x 80”长平板:108年“宽x 105”长枕套王:40“宽x 20“高 |
12% |
|
15% |
![]() |
DwellStudio 韦德Logan Greenbank 6抽屉柜子 |
丰富的橡木和clean-lined设计完成给这个环保梳妆台当代穿别致的风格轮出任何合奏。 | 订单&保存 | 37.09 W x 17.64“H x 59.69 D |
15% |
|
15% |
![]() |
DwellStudio 卢卡桶麦迪逊公园椅子上 数量:2 |
这桶椅子与宽,长胳膊和长毛绒织物邀请你定居并保持一段时间。 | 订单&保存 | 28.9 W x 29.5“H x 26.75 D |
15% |
|
15% |
![]() |
DwellStudio 安吉拉28.5”H与鼓台灯阴影云雀庄园 数量:2 |
迷人的几何设计将时尚本身的焦点与包容你的空间的精致的台灯。完成:古董镜子 | 订单&保存 | 28.5 W x 16“H x 16 D |
15% |
|
12% |
![]() |
西方榆树 马龙竞选床头柜——白漆 数量:2 |
灵感来自家具设计的18世纪的欧洲探险家,马龙竞选床头柜上的抛光镍硬件引用镀金的角落在英国帝国时代旅行箱子。 | 订单&保存 | 20 w x 18”d x 26“h。 |
12% |
|
15% |
![]() |
DwellStudio 斜纹软垫床面板的天际线家具 |
家具:斜纹灰色,大小:王 | 订单&保存 | 54.5 W x 85“H x 81.5 D |
15% |
走廊/条目:
因为你的房间得到充足的阳光颜色选项是很广泛的。
为主要颜色,我们选择使用白色/白色,因为它提供了一个清新、干净,感觉空间。白色和白色的颜色通常是一个最喜欢的墙是因为它们的身体轻,中性,搭配最配色方案。他们会让房间感觉更多的通风和宽敞。
使用一个蛋壳面漆有很轻的光芒(类似纹理蛋壳就暗示了它的名字)。这完成是经常用于墙壁和比喷砂面更耐用,易于清洁
为主要颜色,我们选择使用白色/白色,因为它提供了一个清新、干净,感觉空间。白色和白色的颜色通常是一个最喜欢的墙是因为它们的身体轻,中性,搭配最配色方案。他们会让房间感觉更多的通风和宽敞。
使用一个蛋壳面漆有很轻的光芒(类似纹理蛋壳就暗示了它的名字)。这完成是经常用于墙壁和比喷砂面更耐用,易于清洁
走廊/条目的颜色:
| 颜色 | 的名字 | 公司/代码 | 链接 | 区域 |
|---|---|---|---|---|
| 装饰的白色 | 本杰明摩尔/ CC-20 | https://www.benjaminmoore.com/en-us/color-overview/find-your-color/color/CC-20/decorators-white?color=CC-20 | 墙 |
购物清单:
| Decorilla折扣 | 照片 | 的名字 | 描述 | 链接 | 维 | Decorilla折扣 |
|---|---|---|---|---|---|---|
|
2% |
![]() |
AllModern 卢西亚诺6金照明光的水晶吊灯 |
完成:Chrome遮阳材料:透明玻璃棒 | 订单&保存 | 8 W x 26“H x 26 D |
2% |
|
5% |
![]() |
最远的集合 Lensua桌案,阿尔戈家具 |
浇头有平皮革表面,所以它也可以用作桌子或写表。 | 订单&保存 | 27.5 W x 15.7“H x 48 D |
5% |
|
16% |
![]() |
CB2 列凳子Moe的集合 数量:2 |
铬色材料:陶瓷 | 订单&保存 | 17 W x 13“H x 13 D |
16% |
|
16% |
![]() |
CB2 矩形铜冰铜美化市容托盘的房子前面 |
经典冰铜黄铜完成不锈钢 | 订单&保存 | 12.25 D x 1“W x 4.75 H |
16% |
|
10% |
![]() |
Z Gallerie 猎户座的镜子 |
这面镜子把正面的建筑设计,以及迷人的反思回顾它。 | 订单&保存 | 38“直径 |
10% |
|
5% |
![]() |
Modway家具收藏 铂列灯 |
订单&保存 | 16 d x 29“w x 10 h |
5% |
|
|
16% |
![]() |
箱和桶 方向的花瓶 |
这张精致的花瓶简单概要出色地用一个泡沫形成的厚虚假的清洁,经典的外观。 | 订单&保存 | 4“dia。x 11“H |
16% |
|
12% |
![]() |
西方榆树 画廊帧——抛光镍 数量:3 |
这些流行,多才多艺,可以到帧有各种大小进行收集和管理艺术更有趣。 | 订单&保存 | 5.5”x 7.5” |
12% |
|
12% |
![]() |
西方榆树 画廊帧——抛光镍 数量:5 |
这些流行,多才多艺,可以到帧有各种大小进行收集和管理艺术更有趣。 | 订单&保存 | 8.5”x 10.5” |
12% |
|
12% |
![]() |
西方榆树 画廊帧——抛光镍 数量:2 |
这些流行,多才多艺,可以到帧有各种大小进行收集和管理艺术更有趣。 | 订单&保存 | 12.5平方。 |
12% |
|
12% |
![]() |
西方榆树 画廊帧——抛光镍 数量:2 |
这些流行,多才多艺,可以到帧有各种大小进行收集和管理艺术更有趣。 | 订单&保存 | 15.5”x 19.5” |
12% |
|
12% |
![]() |
西方榆树 画廊帧——抛光镍 |
这些流行,多才多艺,可以到帧有各种大小进行收集和管理艺术更有趣。 | 订单&保存 | 25“x 18” |
12% |
工作室:
因为你的房间得到充足的阳光颜色选项是很广泛的。
为你的主色调,我们选择使用灰色,因为它是中性的,视为优雅和优雅。它赞美很多颜色如白色,蓝色,黄色和适用的配色方案在任何房间。
使用一个蛋壳面漆有很轻的光芒(类似纹理蛋壳就暗示了它的名字)。这完成是经常用于墙壁和比喷砂面更耐用,易于清洁
为你的主色调,我们选择使用灰色,因为它是中性的,视为优雅和优雅。它赞美很多颜色如白色,蓝色,黄色和适用的配色方案在任何房间。
使用一个蛋壳面漆有很轻的光芒(类似纹理蛋壳就暗示了它的名字)。这完成是经常用于墙壁和比喷砂面更耐用,易于清洁
工作室颜色:
| 颜色 | 的名字 | 公司/代码 | 链接 | 区域 |
|---|---|---|---|---|
| 水泥灰色 | 本杰明摩尔/ 2112 - 60 | https://www.benjaminmoore.com/en-us/color-overview/find-your-color/color/2112-60/cement-gray?color=2112-60 | 墙 |
购物清单:
| Decorilla折扣 | 照片 | 的名字 | 描述 | 链接 | 维 | Decorilla折扣 |
|---|---|---|---|---|---|---|
|
2% |
![]() |
AllModern 卢克莱修的酒吧服务购物车汉普顿的房子 |
反映家具是最完美的方式注入一点迷惑任何外观和添加额外的空间在房间或大或小的错觉。完成:银 | 订单&保存 | 32 H x 30 W x 18”D |
2% |
|
2% |
![]() |
AllModern 站在Eurostyle米兰达电视 |
米兰达电视站是一个伟大的方式来简化这些家庭影院ups是如此美妙的享受,直到你不得不处理线;获得恰到好处的高度,等。和两个大抽屉。完成:白色漆 | 订单&保存 | 16 W x 16“H x 63 D |
2% |
|
16% |
![]() |
CB2 帝国台灯 |
才华横溢的极简主义,由科琳娜温暖的设计是一个熟练的玩的形状,材料和比例。 | 订单&保存 | 20.75“Wx4 Dx26 H |
16% |
|
16% |
![]() |
CB2 指数沙发 |
额外的宽敞,广场的手臂支撑书和零食托盘(棒),低调的剪影,男子气概的深灰色编织,self-welting细节和光滑的磨砂不锈钢框架。 | 订单&保存 | 宽度:91.25“深度:34.5”高度:28.75” |
16% |
|
15% |
![]() |
DwellStudio 布坎南停电单一窗帘面板Varick画廊 数量:2 |
这个窗帘的停电设计搭配纯色模式刷新你的windows在别致的风格。将其添加到主卧套房来阻挡光快速小睡或把它挂在客厅里的时尚风格。 | 订单&保存 | 95 W x 0.25“52 x L D |
15% |
|
16% |
![]() |
箱和桶 哑光镍1.25”迪亚。x88“-120”窗帘杆 |
当代哑光镍提供了光滑、简单的支持。 | 订单&保存 | 1.25“dia.x88“-120” |
16% |
|
15% |
![]() |
DwellStudio Baxton工作室爱尔兰人奥斯曼批发内饰 |
实践作为一个奥斯曼和咖啡桌,这张买一送一客厅的口音是批发内饰一见钟情。家具:灰色 | 订单&保存 | 17.25 W x 39.75“H x 39.75 D |
15% |
|
15% |
![]() |
DwellStudio 梳子茶几,韦德洛根 |
这偶尔的茶几是用钢化玻璃桌面和书架,还有一个黑色镍框架。 | 订单&保存 | 23 W×24“H x 26 D |
15% |
|
15% |
![]() |
DwellStudio 瑞现代茶几,韦德洛根 |
光滑和时髦,韦德Logan鲁伊侧表是一个很好的除了你的客厅座位安排。 | 订单&保存 | 20 W x 20 D |
15% |
|
15% |
![]() |
DwellStudio 由Safavieh Guildsman金属桌子凳子 |
活着的精神的巴黎文人的散文像闪烁着午夜晚会,香槟喷香Guildsman金属桌子凳子都是一块无价之宝。 | 订单&保存 | 21 W x 14“H x 14 D |
15% |
|
15% |
![]() |
DwellStudio Kichler 54“Cadencec 3叶片吊扇 |
完成:拉丝不锈钢刀片和香槟 | 订单&保存 | 54“W x 54”D |
15% |
|
15% |
![]() |
DwellStudio 牛津大学图书馆古董书33 ' x 20.5”风景壁纸的布儒斯特家时尚 数量:3 |
创建自己的广阔的皮革图书馆纸质书,这看起来惊人的墙纸设计带来一个培养在耀眼的宝石色调的墙壁。颜色:棕色(您将需要3卷的区域) | 订单&保存 | 124平方。英国《金融时报》壁纸辊:20.5“W x 33 ' L |
15% |
|
15% |
![]() |
DwellStudio 瓦伦西亚66”由Ren-Wil拱形落地灯 |
艺术家:乔纳森·威尔纳和保罗·德·Bellefeuille | 订单&保存 | 66 W x 19“H x 12 D |
15% |
|
12% |
![]() |
西方榆树 固体的角度Basketweave羊毛地毯-铂8 'x10” |
一个anything-but-basic背景。由技术熟练的印度工匠手工制作,我们的簇绒固体Basketweave羊毛地毯有一个微妙的纵横交错的纹理使用了专门的手刻技术。 | 订单&保存 | 8 'x10” |
12% |
卫生间:
因为你的房间使用一个黑暗的小和丰富的颜色会让你感到舒适,温暖,nassau185号
为你的主色调,我们选择使用灰色,因为它是中性的,视为优雅和优雅。它赞美很多颜色如白色,蓝色,黄色和适用的配色方案在任何房间。
使用缎光泽面漆,有一点比蛋壳完成,更顺畅。这通常用于完成窗户、门、修剪,也可以理想的墙壁和天花板,但是在孩子们的房间,浴室,厨房和其他临街的房间,因为它是更容易比蛋壳完成清洁。
为你的主色调,我们选择使用灰色,因为它是中性的,视为优雅和优雅。它赞美很多颜色如白色,蓝色,黄色和适用的配色方案在任何房间。
使用缎光泽面漆,有一点比蛋壳完成,更顺畅。这通常用于完成窗户、门、修剪,也可以理想的墙壁和天花板,但是在孩子们的房间,浴室,厨房和其他临街的房间,因为它是更容易比蛋壳完成清洁。
浴室的颜色:
| 颜色 | 的名字 | 公司/代码 | 链接 | 区域 |
|---|---|---|---|---|
| 钢丝绒 | 本杰明摩尔/ 2121 - 20 | https://www.benjaminmoore.com/en-us/color-overview/find-your-color/color/2121-20/steel-wool?color=2121-20 | 墙 |
购物清单:
| Decorilla折扣 | 照片 | 的名字 | 描述 | 链接 | 维 | Decorilla折扣 |
|---|---|---|---|---|---|---|
|
15% |
![]() |
DwellStudio 帝国II 36“单一浴室盥洗台的好设备 |
结婚主要颜色探索性设计、第二帝国一样美丽的功能。 | 订单&保存 | 32.75“H x 35.38“W x 18”D |
15% |
|
15% |
![]() |
DwellStudio 蒙德里安5 Dainolite光墙的烛台 数量:2 |
完成:抛光镀铬 | 订单&保存 | 19“H x 10 W x 3 D |
15% |
|
16% |
![]() |
CB2 ∞36“圆墙镜 |
镜像没有边界框架薄,修剪和确切的纯铝挤压 | 订单&保存 | 36 " |
16% |
厨房:
因为你的房间得到充足的阳光颜色选项是很广泛的。
为主要颜色,我们选择使用白色/白色,因为它提供了一个清新、干净,感觉空间。白色和白色的颜色通常是一个最喜欢的墙是因为它们的身体轻,中性,搭配最配色方案。他们会让房间感觉更多的通风和宽敞。
使用一个蛋壳面漆有很轻的光芒(类似纹理蛋壳就暗示了它的名字)。这完成是经常用于墙壁和比喷砂面更耐用,易于清洁
为主要颜色,我们选择使用白色/白色,因为它提供了一个清新、干净,感觉空间。白色和白色的颜色通常是一个最喜欢的墙是因为它们的身体轻,中性,搭配最配色方案。他们会让房间感觉更多的通风和宽敞。
使用一个蛋壳面漆有很轻的光芒(类似纹理蛋壳就暗示了它的名字)。这完成是经常用于墙壁和比喷砂面更耐用,易于清洁
厨房的颜色:
| 颜色 | 的名字 | 公司/代码 | 链接 | 区域 |
|---|---|---|---|---|
| 装饰的白色 | 本杰明摩尔/ CC-20 | https://www.benjaminmoore.com/en-us/color-overview/find-your-color/color/CC-20/decorators-white?color=CC-20 | 墙 |
购物清单:
| Decorilla折扣 | 照片 | 的名字 | 描述 | 链接 | 维 | Decorilla折扣 |
|---|---|---|---|---|---|---|
|
2% |
![]() |
AllModern Kichler艾维- 1光迷你吊坠 数量:3 |
包络水银玻璃在一个清晰的玻璃外壳产生一种温暖的光在当代框架。 | 订单&保存 | 10“H x 6“W |
2% |
|
2% |
![]() |
AllModern Gipe Brayden餐桌的工作室 |
玻璃和抛光不锈钢餐桌的建设使其坚固和时尚感。 | 订单&保存 | 30 L x 36“H x 60 W |
2% |
|
16% |
![]() |
CB2 凤凰象牙24“反凳子 数量:3 |
流线型整体皮革西装“n”席位。宽的座位/广场吃饭在舒适区。用单色topstitch象牙皮革复合。管式方形金属腿踢在缎面镍完成。 | 订单&保存 | 宽度:18.5“深度:19”高度:33.5” |
16% |
|
15% |
![]() |
DwellStudio Jared簇板凳长椅,珍妮弗·泰勒 |
家具:灰色 | 订单&保存 | 29“H x 54”W x 24 D |
15% |
|
15% |
![]() |
DwellStudio 涅瑞伊得斯4光仓库的蒂芙尼的水晶吊灯 |
这种动态照明元素特性慷慨的行级联晶体光。 | 订单&保存 | 16 W x 13“H x 13 D |
15% |
|
15% |
![]() |
DwellStudio nuLOOM Ryck浅灰色小地毯 |
建设:手毛圈材料:100%羊毛 | 订单&保存 | 5“×8” |
15% |
|
10% |
![]() |
Z Gallerie 轴餐椅 数量:2 |
抛光不锈钢基地和家具回收皮革制成的结合做一个戏剧性的轴餐椅。 | 订单&保存 | 18 D x 35“W x 21.5 H |
10% |
![]() |
铸造 植物细胞1玛丽加斯帕 |
丰富的黑色木框架。颜色:黑色。标准的边界和席子 | 订单&保存 | 30“X 40” | ||
|
16% |
![]() |
箱和桶 亚麻的52“x96”白色窗帘面板 数量:2 |
Open-weave亚麻扩散光漂亮。 | 订单&保存 | 宽度:52“高度:96” |
16% |
|
16% |
![]() |
箱和桶 dia Rorke镍1.25”。x88“-120”窗帘杆 |
经典旋钮顶尖抛光镍添加定义挂人字起重架和窗帘。 | 订单&保存 | 1.25“×88”-120” |
16% |
|
15% |
![]() |
DwellStudio Peraza Hand-Tufted白色区域地毯的汞行 |
可以用在餐桌上 | 订单&保存 | 5“×8” |
15% |
餐厅:
因为你的房间得到充足的阳光颜色选项是很广泛的。
为主要颜色,我们选择使用白色/白色,因为它提供了一个清新、干净,感觉空间。白色和白色的颜色通常是一个最喜欢的墙是因为它们的身体轻,中性,搭配最配色方案。他们会让房间感觉更多的通风和宽敞。
使用一个蛋壳面漆有很轻的光芒(类似纹理蛋壳就暗示了它的名字)。这完成是经常用于墙壁和比喷砂面更耐用,易于清洁
为主要颜色,我们选择使用白色/白色,因为它提供了一个清新、干净,感觉空间。白色和白色的颜色通常是一个最喜欢的墙是因为它们的身体轻,中性,搭配最配色方案。他们会让房间感觉更多的通风和宽敞。
使用一个蛋壳面漆有很轻的光芒(类似纹理蛋壳就暗示了它的名字)。这完成是经常用于墙壁和比喷砂面更耐用,易于清洁
餐厅的颜色:
| 颜色 | 的名字 | 公司/代码 | 链接 | 区域 |
|---|---|---|---|---|
| 装饰的白色 | 本杰明摩尔/ CC-20 | https://www.benjaminmoore.com/en-us/color-overview/find-your-color/color/CC-20/decorators-white?color=CC-20 | 墙 |
购物清单:
| Decorilla折扣 | 照片 | 的名字 | 描述 | 链接 | 维 | Decorilla折扣 |
|---|---|---|---|---|---|---|
|
2% |
![]() |
AllModern Modrest Xavier餐桌中收取的家具 |
光滑的和惊人的,泽维尔当代餐桌是一个明确的奇观! | 订单&保存 | 30 L x 39“H x 79 W |
2% |
|
16% |
![]() |
CB2 镜子媒体书柜 |
打开三个门揭示昂贵的存储,有两个可调货架上(一个长货架后面两个左门和一个短货架后面右边的门),沿着后板和图样连线。 | 订单&保存 | 宽度:42“深度:17.5”高度:26.25” |
16% |
![]() |
铸造 孟菲斯简模糊休斯 |
丰富的黑色木框架。颜色:黑色。标准的边界和席子 | 订单&保存 | 30“x 40” | ||
![]() |
现代的房间 现代的房间家具ELAN 12椭圆形吊灯ELNL1055光 |
完成:铬 | 订单&保存 | 14.75 W x 31.5“H x 22.83 D | ||
|
10% |
![]() |
Z Gallerie 棱镜支柱持有人- 9.5“H 数量:2 |
惊人的时尚,我们的clean-lined棱镜支柱持有者层你的装饰风格和温暖的烛光照明。 | 订单&保存 | 4 D x 9.5“W x 4 H |
10% |
|
10% |
![]() |
Z Gallerie 棱镜支柱持有人- 11.5“H |
惊人的时尚,我们的clean-lined棱镜支柱持有者层你的装饰风格和温暖的烛光照明。 | 订单&保存 | 4.25 D x 11.5“W x 4.25 H |
10% |
|
10% |
![]() |
Z Gallerie 圈内人面板 数量:2 |
点缀你的windows在轻松风格与我们的半纯粹的圈内人面板。 | 订单&保存 | 54“×96” |
10% |
|
16% |
![]() |
箱和桶 dia Rorke镍1.25”。x88“-120”窗帘杆 |
经典旋钮顶尖抛光镍添加定义挂人字起重架和窗帘。 | 订单&保存 | 1.25“×88”-120” |
16% |
|
10% |
![]() |
Z Gallerie 威尼西亚地毯 |
单色配色方案提供了一个简单的优雅在任何形式的设计。 | 订单&保存 | 7“10“x”6” |
10% |
|
10% |
![]() |
Z Gallerie 萨凡纳花瓶——小 |
真正的灵感设计强调将传统。 | 订单&保存 | 9“diam. x 14.5”h。 |
10% |
|
10% |
![]() |
Z Gallerie 萨凡纳花瓶——大 |
真正的灵感设计强调将传统。 | 订单&保存 | 5.9“diam. x 25“h |
10% |
家庭/小办公室:
因为你的房间得到充足的阳光颜色选项是很广泛的。
为主要颜色,我们选择使用白色/白色,因为它提供了一个清新、干净,感觉空间。白色和白色的颜色通常是一个最喜欢的墙是因为它们的身体轻,中性,搭配最配色方案。他们会让房间感觉更多的通风和宽敞。
使用一个蛋壳面漆有很轻的光芒(类似纹理蛋壳就暗示了它的名字)。这完成是经常用于墙壁和比喷砂面更耐用,易于清洁
为主要颜色,我们选择使用白色/白色,因为它提供了一个清新、干净,感觉空间。白色和白色的颜色通常是一个最喜欢的墙是因为它们的身体轻,中性,搭配最配色方案。他们会让房间感觉更多的通风和宽敞。
使用一个蛋壳面漆有很轻的光芒(类似纹理蛋壳就暗示了它的名字)。这完成是经常用于墙壁和比喷砂面更耐用,易于清洁
家庭/小办公室的颜色:
| 颜色 | 的名字 | 公司/代码 | 链接 | 区域 |
|---|---|---|---|---|
| 装饰的白色 | 本杰明摩尔/ CC-20和阴影 | https://www.benjaminmoore.com/en-us/color-overview/find-your-color/color/CC-20/decorators-white?color=CC-20 | 墙 |
购物清单:
| Decorilla折扣 | 照片 | 的名字 | 描述 | 链接 | 维 | Decorilla折扣 |
|---|---|---|---|---|---|---|
|
2% |
![]() |
AllModern 62年“拱形落地灯的卡尔照明 |
耐用的金属结构。带有平衡臂 | 订单&保存 | 62 W x 3.75“H x 9 D |
2% |
|
16% |
![]() |
CB2 tesso chrome的桌子 数量:2 |
光滑的镀铬戴安娜路钢造型吸引眼球的设计。 | 订单&保存 | 宽度:50“深度:30”高度:29.5” |
16% |
![]() |
铸造 当你凯伦·科尔 |
丰富的黑色木框架。颜色:安静的灰色。标准的边界和席子 | 订单&保存 | 24“×24” | ||
![]() |
铸造 Jaime德林格untitled 1 |
丰富的黑色木框架。标准的边界和席子 | 订单&保存 | 30“x 40” | ||
|
15% |
![]() |
DwellStudio 克鲁兹Mid-Back皮革会议椅由克里甘工作室 数量:2 |
家具:白色 | 订单&保存 | 23.5“W x 25.5“D |
15% |
|
15% |
![]() |
DwellStudio 的住房过滤光窗帘面板合并纺织品 |
渐变颜色的宽条纹提供一个大胆的,然而艺术声明你的任何窗口。 | 订单&保存 | 96 W x 0.1“L x 54 D |
15% |
|
15% |
![]() |
DwellStudio 普雷斯科特23“H台灯由Adesso帝国阴影 数量:2 |
当代经典语句,普雷斯科特台灯庆祝线条简洁和实用。 | 订单&保存 | 23“H x 5”W x 12 D |
15% |
|
15% |
![]() |
DwellStudio 韦德洛根蜡烛木地球灰色区域地毯 |
这种粗毛地毯增加了柔软和豪华柔软的桩。 | 订单&保存 | 8“x 10’ |
15% |
|
10% |
![]() |
Z Gallerie 钱伯斯躺椅,花岗岩 |
我们室的马车平衡传统与进步,融合经典的剪裁更现代的线条。 | 订单&保存 | 34 D x 34“W x 64 H |
10% |
|
16% |
![]() |
箱和桶 dia Rorke镍1.25”。x88“-120”窗帘杆 |
经典旋钮顶尖抛光镍添加定义挂人字起重架和窗帘。 | 订单&保存 | 1.25“×88”-120” |
16% |
从现在开始一个项目
100%满意保证



























































































证明
查看最近的评论
琥珀色的
5年前
再次感谢。你是最棒的!
琥珀色的